Appartamento con piccolo atrio in vendita – Via Buccari 15, Taranto

TarantoSolito/Corvisea - Appartamento in vendita
68.000 €
Caratteristiche principali
75 m²
Superficie
2
Locali
Descrizione
Appartamento con piccolo giardino in vendita – Via Buccari 15, Taranto

Una soluzione accogliente e funzionale, con spazio esterno privato, ideale per chi cerca una casa comoda al piano terra.

Proponiamo in vendita appartamento di circa 75 mq situato al piano terra in Via Buccari 15. L’immobile si presenta in buone condizioni generali, con possibilità di personalizzazione attraverso alcuni interventi di aggiornamento.

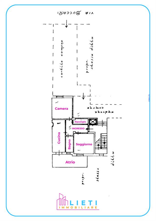
L’abitazione è composta da ingresso, ampia cucina abitabile con accesso diretto a un piccolo giardino, spazio esterno che rappresenta un valore aggiunto per momenti di relax o per chi desidera un’area verde privata. Completano la proprietà un soggiorno, una camera da letto, un ampio bagno e un comodo ripostiglio.

Gli ambienti sono ben distribuiti e funzionali. Gli infissi sono in legno e necessitano di sostituzione, mentre non è presente impianto di riscaldamento.

Una soluzione interessante per chi desidera un appartamento con spazio esterno in una zona tranquilla e ben servita.

Punti di interesse
• Fermata bus nelle immediate vicinanze
• Supermercati e servizi di quartiere a pochi passi
• Scuole e farmacia facilmente raggiungibili
• Collegamenti agevoli con il centro città

Caratteristiche principali
• Superficie: 75 mq
• Piano: terra • no ascensore
• Vani: 3
• Bagni: 1
• Stato immobile: buone condizioni
• Riscaldamento: assente
• Climatizzazione: assente
• Spazi esterni: piccolo atrio
Ti interessa? Contattaci per maggiori dettagli e per organizzare una visita.
• Siamo in Via De Cesare 54, Taranto
• 099 5937802
• Orari: lun–ven, 9:00–13:00 / 17:00–20:00
Caratteristiche
Codice:
Buccari 15
Città:
Taranto (Solito/Corvisea)
Categoria:
Appartamento
Locali:
2
Mq:
75
Classe energetica:
G
Stato Immobile:
Buono
Grado:
Medio
Giardino:
Privato
Tipo Cucina:
Abitabile
Infissi:
Legno
Serramenti:
Discreto
Accessori
Aria Condizionata
Ripostiglio
Planimetrie
Mappa
Buccari, 15 - Taranto (TA)
Richiedi informazioni
Cookie preference