Appartamento luminoso con doppio affaccio in Via Plateja

TarantoTrecarrare/Battisti - Appartamento in vendita
83.000 €
Caratteristiche principali
100 m²
Superficie
3
Locali
3
Camere
1
Bagni
Descrizione
Appartamento luminoso con doppio affaccio in Via Plateja

Spazi ampi e versatili in un contesto servito: una casa che lascia libertà di organizzare gli ambienti secondo le proprie esigenze.

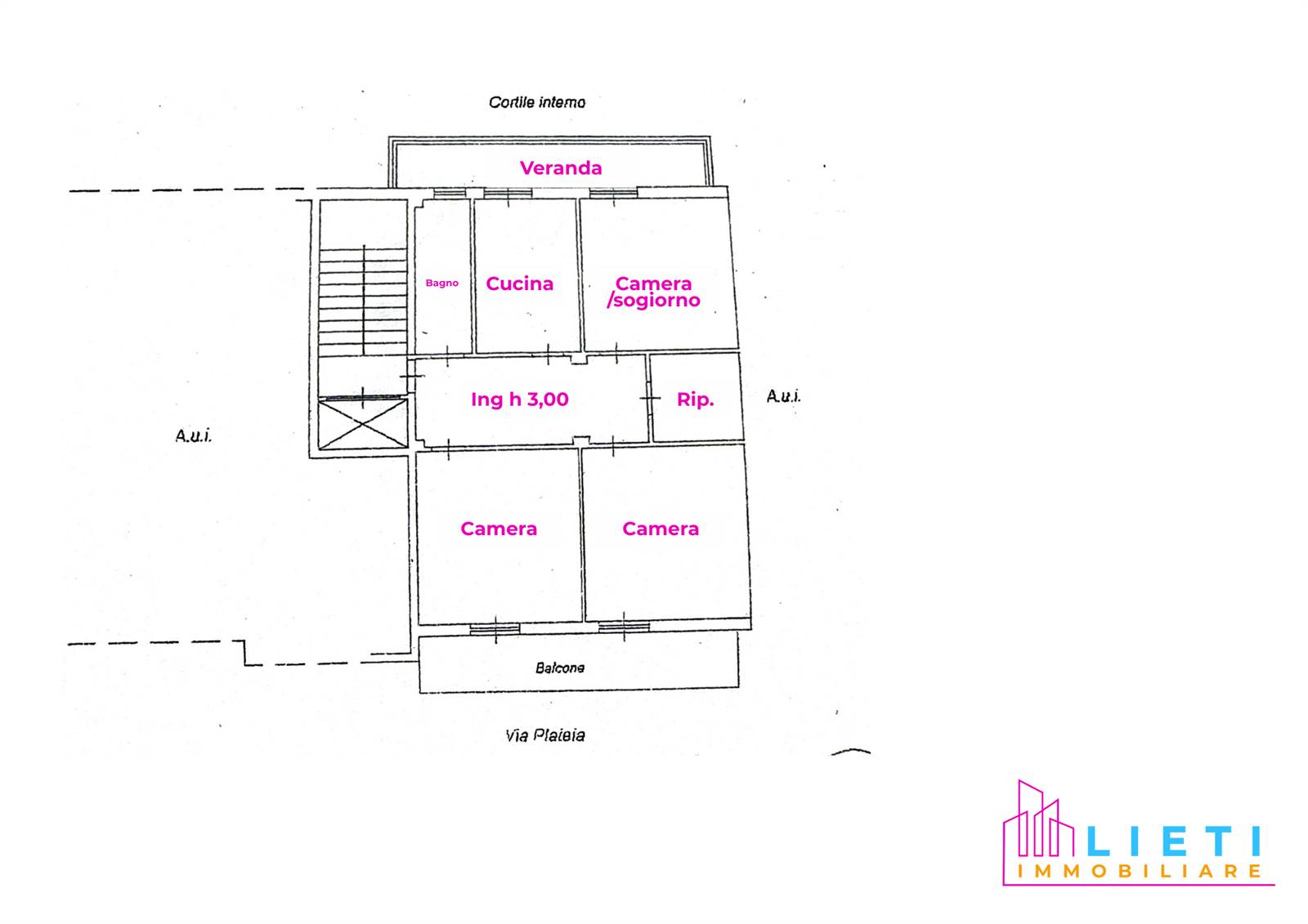
Proponiamo in vendita un appartamento di circa 100 mq in Via Plateja n. 10, situato al settimo piano con ascensore. L’immobile accoglie con un ampio ingresso e offre tre camere da letto (o due camere e soggiorno, in base alle preferenze), cucina abitabile, bagno, ripostiglio e veranda. Grazie al doppio affaccio, gli ambienti risultano luminosi e ariosi durante tutta la giornata. I pavimenti in marmo donano eleganza agli spazi, mentre i termosifoni già presenti non sono attualmente collegati a un impianto di riscaldamento. La casa si presenta in buone condizioni generali ma con la possibilità di rimodernare soprattutto il bagno, rendendola perfetta per chi desidera personalizzare gli interni secondo il proprio stile.

Punti di interesse:
• Quartiere servito con negozi e supermercati sotto casa
• Fermata bus a pochi metri
• Scuole e farmacia nelle vicinanze
• Centro città raggiungibile in pochi minuti

Caratteristiche principali:
• Superficie: 100 mq
• Piano: 7° • ascensore
• Vani: 3 (o 2 + soggiorno)
• Bagni: 1
• Stato immobile: buone condizioni da rimodernare
• Riscaldamento: assente (termosifoni non collegati)
• Climatizzazione: assente
• Spazi esterni: veranda con doppio affaccio

Ti interessa? Contattaci per maggiori dettagli e per organizzare una visita.
• Siamo in Via De Cesare 54, Taranto
• 099 5937802
• Orari: lun–ven, 9:00–13:00 / 17:00–20:0
Caratteristiche
Codice:
Via Plateja 10
Città:
Taranto (Trecarrare/Battisti)
Categoria:
Appartamento
Locali:
3
Camere:
3
Bagni:
1
Mq:
100
Mq calpestabili:
95
Balconi:
2
Classe energetica:
F
100 kWh/m²a
Stato Immobile:
Abitabile
Grado:
Medio
Accessori
Ascensore
Porta Blindata
Veranda
Zanzariere
Planimetrie
Mappa
Via Plateja, 10 - Taranto (TA)
Richiedi informazioni
Cookie preference